Zum Inhalt, zur Navigation oder zur Startseite springen.

Verwaltungsgemeinschaft Zolling | Online: https://www.vg-zolling.de/

Zur Startseite der Homepage der Gemeinde Zolling Zur Startseite der Homepage der Gemeinde Attenkirchen Zur Startseite der Homepage der VGem Zur Startseite der Homepage der Gemeinde Haag a.d.Amper Zur Startseite der Homepage der Gemeinde Wolfersdorf
Zur Startseite der Homepage der Gemeinde Zolling
 

Schriftgröße

A A A

Header Gemeinde Zolling (Kirchturm)Header Gemeinde ZollingHeader Gemeinde Zolling (Bierzelt)Header Gemeinde Zolling (Fensterbak-Deko)Header Gemeinde Zolling (Kraftwerk)Header Gemeinde Zolling (Winterstimmung)Header Gemeinde Zolling (Abendstimmung)Header Gemeinde Zolling (Weihnachtsmarkt)Header Gemeinde Zolling (Holzhaus)
  • Aktuelles
    • Gemeindebrief
    • Termine u. Veranstaltungen Zolling
    • Bekanntmachungen
    • Wahlen / Abstimmungen
      • Kommunalwahl 2026
      • Bundestagswahl 2025
      • Europawahl 2024
    • Stellenangebote
    • Notrufnummern
    • Straßensperrungen in Zolling
  • Rathaus & Service
    • Bürgerservice und Verwaltung
      • Bürgerbüro online
      • Aufgaben
      • Mitarbeiter
      • Formulare
      • Fundbüro online
      • Sachgebiete-Organigramm
    • Gemeinderat
      • Bürgermeister
      • Mitglieder
      • Ausschüsse und Verbände
      • Fraktionen
      • Sitzungen Zolling
      • Gemeinderatsberichte
      • Bürgerversammlung online
    • Ver- und Entsorgung
      • Entsorgungsstellen
      • Wasserversorgung
      • Abwasserentsorgung
    • Satzungen und Verordnungen
    • Kulturraum Ampertal
  • Leben & Wohnen
    • Ortsinformationen
      • Ortsplan
      • Standorte Defibrillatoren
      • Zahlen und Daten
      • Geschichte
      • Wappen
    • Kinder, Jugend, Bildung
      • Kindergärten
      • Schule
      • Kinderstüberl
      • Gemeindejugendpflege/Jugendtreff
      • Ferienprogramm
      • Für unsere Kinder
    • Senioren
      • Fit im Alter
      • Seniorengymnastik
      • Seniorenclubs
      • Auskunft und Beratung
      • Krankenpflegedienste
      • Wohn- und Pflegeheime
    • Arbeitskreis Heimat
    • Soziale Angebote
    • Kirchen und Pfarrämter
    • Luftbildaufnahmen
  • Kultur und Freizeit
    • Vereine
    • Sporteinrichtungen
    • Badesee
    • Lastenrad und E-Bike Verleih / Rad- und Wanderweg
    • Gastronomie und Übernachtung
    • Bücherei
    • Bürgerhaus
      • Technische Daten
      • Bilder
    • Volkshochschule
  • Wirtschaft und Standort
    • Planen und Bauen
      • Informationen vom Bauamt
      • Abgabe von Bauanträgen
      • Baugrundstücke
      • Bauleitplanung
      • Planfeststellungen
    • Wohnraumförderung
    • Dienstleistungsportal Bayern
    • Gewerbebetriebe
    • Gewerbegebiete
  • Aktuelles
  • Rathaus & Service
  • Leben & Wohnen
  • Kultur und Freizeit
  • Wirtschaft und Standort
    • Planen und Bauen
      • Informationen vom Bauamt
      • Abgabe von Bauanträgen
      • Baugrundstücke
      • Bauleitplanung
        • Bebauungs- Flächennutzungspläne
      • Planfeststellungen
    • Wohnraumförderung
    • Dienstleistungsportal Bayern
    • Gewerbebetriebe
    • Gewerbegebiete

Siegel Kommunale Sicherheit Gemeinde Zolling 07/2026

Sie sind hier: Gemeinde Zolling > Wirtschaft und Standort > Planen und Bauen > Bauleitplanung > Bebauungs- Flächennutzungspläne

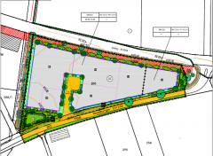
Bebauungsplan "Gewerbegebiet Ost" in Zolling

Parzellierung Gewerbegebiet Ost in Zolling

....

Downloads

Bebauungsplan Gewerbegebiet Ost in Zolling (5.90 MB)
Bestands- und Bewertungsplan Gewerbegebiet Ost in Zolling (678.78 KB)
Ausgleichsflächenplan Gewerbegebiet Ost in Zolling (915.26 KB)
Begründung mit Umweltbericht zum Bebauungsplan Gewerbegebiet Ost in Zolling (467.42 KB)
Bodenmanagementkonzept zum Bebauungsplan Gewerbegebiet Ost in Zolling (152.64 KB)
Schalltechnische Untersuchung Gewerbegebiet Ost in Zolling (11.21 MB)
Naturschutzfachliche Angaben zur saP im Gewerbegebiet Ost in Zolling (1.22 MB)

drucken nach oben

Quicklinks

  • Kontakt
  • Inhaltsverzeichnis
  • Impressum
  • Datenschutz

Gemeinde Zolling

Mitglied der
Verwaltungsgemeinschaft Zolling

 

Rathausplatz 1
85406 Zolling

08167 6943-0
08167 9023
rathaus@vg-zolling.de
www.vg-zolling.de

Öffnungszeiten des Rathauses Zolling

Montag 08:00 Uhr – 12:00 Uhr  
Dienstag 08:00 Uhr – 12:00 Uhr  
Mittwoch 08:00 Uhr – 12:00 Uhr  
Donnerstag 08:00 Uhr – 12:00 Uhr 14:00 Uhr – 18:00 Uhr
Freitag 08:00 Uhr – 12:00 Uhr  
oder nach Terminabsprache

 

Wappen Gemeinde Attenkirchen

Gemeinde
Attenkirchen

 

VG-Logo neu

VGem
Zolling

 

Wappen Gemeinde Haag a.d. Amper

Gemeinde
Haag a.d.Amper

Wappen Gemeinde Wolfersdorf

Gemeinde
Wolfersdorf

Wappen Gemeinde Zolling

Gemeinde
Zolling